€
255.000,-
62 m²
1
1
2
1
Helle 2-Zimmer-Wohnung mit optimaler Raumstruktur in begehrter, zentrumsnaher Lage von Saalfelden
Beschreibung
Die gepflegte Wohnung befindet sich in einer kleinen Wohnanlage mit nur 6 Einheiten und bietet Raum für individuelle Gestaltung. Dank der durchdachten Raumaufteilung und der angenehmen Lichtverhältnisse entsteht ein besonders wohnliches und einladendes Ambiente. Die hellen Wohnräume in guter Bauausführung sprechen für sich – Holzfenster, Holztüren/ -zargen, Parkett-/ Fliesen-/ Vinyl & Laminatböden. Die Wohnung wird mittels Elektroheizung beheizt. Ein kleiner Wintergarten und ein großzügiger Allgemeingarten laden zur Entspannung und Geselligkeit im Freien ein.
INVESTMENTCHANCE MIT HOHER VERMIETBARKEIT
INVESTMENTCHANCE MIT HOHER VERMIETBARKEIT
Highlights
ZENTRALE, ABER DENNOCH RUHIGE UND ANGENEHME LAGE IN SAALFELDEN – VERBINDET NATURNAHES WOHNEN MIT BESTER INFRASTRUKTUR – HELLE WOHNRÄUME DURCH OPTIMALE AUSRICHTUNG – GUTES VERMIETUNGSPOTENZIAL DANK LAGE UND WOHNUNGSGRÖSSE – RUHIGE WOHNLAGE TROTZ UNMITTELBARER ZENTRUMSNÄHE – WOHNUNG VERFÜGT ÜBER EINEN WINTERGARTEN, WELCHER SICH IDEAL ZUM ENTSPANNEN ODER ARBEITEN EIGNET - MÖBLIERUNG BEREITS VORHANDEN
Ausstattung
ca. 62 m² Wohnfläche im 1. Obergeschoss plus Wintergarten mit ca. 3 m², Kellerabteil, allgemeine Gartennutzung inkl. Gartenhütte und 1 zugewiesener PKW-Freistellplatz vorhanden
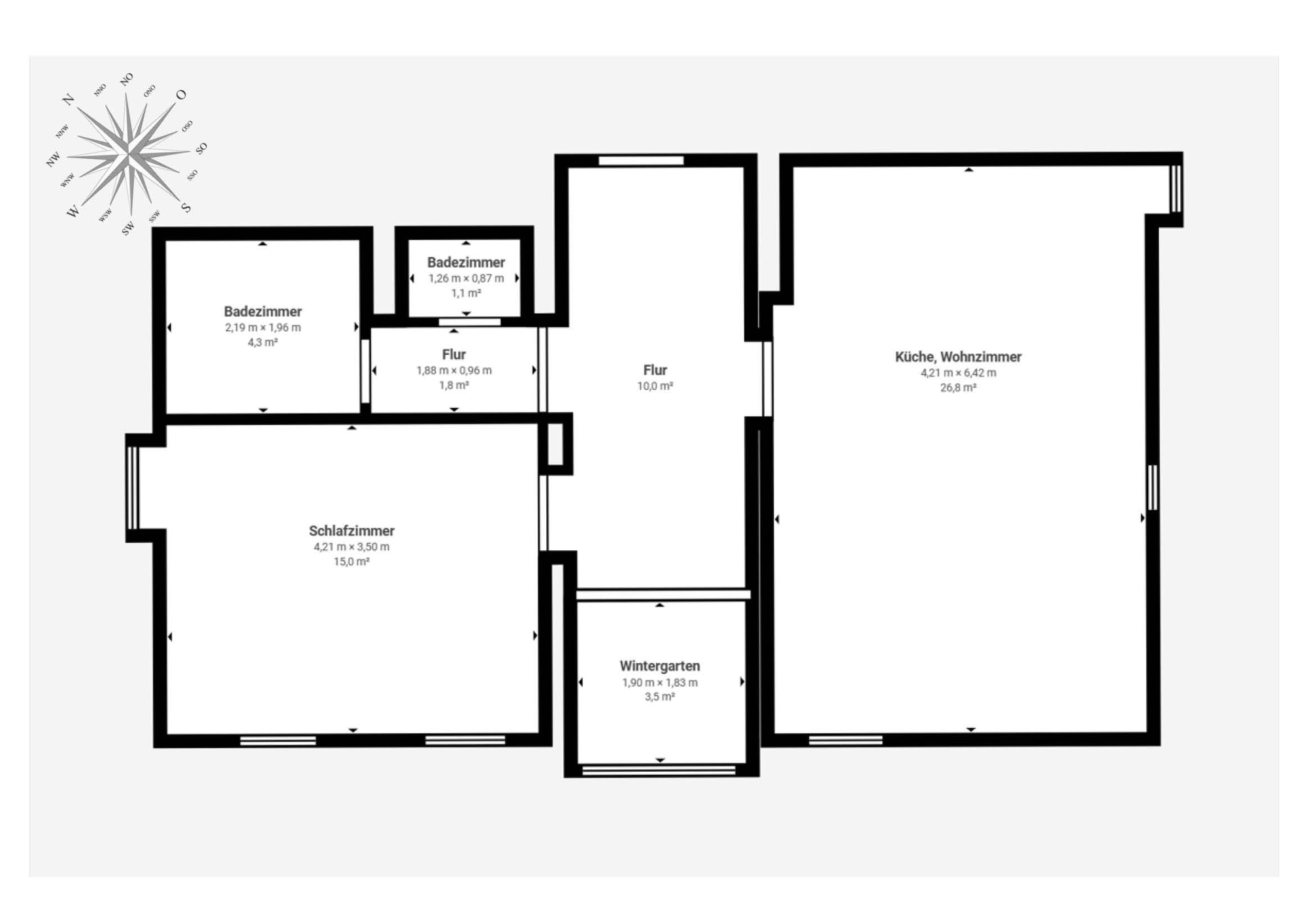
Raumaufteilung: Vorraum mit Zugang auf Wintergarten, Wohn-Essbereich, Schlafzimmer, Badezimmer, separates WC
Kaufpreis: € 255.000,- brutto/netto - keine Ausweisung einer Umsatzsteuer
Betriebskosten: ca. € 262,- monatliches Akonto inkl. USt. und Rücklage zzgl. Strom für Elektroheizung/ Warmwasser
Rücklage: ca. € 51,- monatlich
Strom/ Heizung: je nach Nutzung/ Verbrauch - lt. derzeitigen Mieter ca. € 250,- monatlich
Kabel-TV/ Internet: je nach Vertrag/ Nutzung/ Verbrauch
Energiekennzahl: OFFEN
Virtueller 3D-Rundgang auf unserer Website www.riareal.at bzw. unter dem nachfolgenden Link:
Vermittlungsprovision & weitere Nebenkosten - ÖVI Form Nr. 13K-05-2024 - siehe Button auf unserer Website
Unser Unternehmen ist als Doppelmakler tätig und stets bestrebt, die Interessen beider Parteien fair zu vertreten und einen reibungslosen Ablauf sicherzustellen.
Raumaufteilung: Vorraum mit Zugang auf Wintergarten, Wohn-Essbereich, Schlafzimmer, Badezimmer, separates WC
Kaufpreis: € 255.000,- brutto/netto - keine Ausweisung einer Umsatzsteuer
Betriebskosten: ca. € 262,- monatliches Akonto inkl. USt. und Rücklage zzgl. Strom für Elektroheizung/ Warmwasser
Rücklage: ca. € 51,- monatlich
Strom/ Heizung: je nach Nutzung/ Verbrauch - lt. derzeitigen Mieter ca. € 250,- monatlich
Kabel-TV/ Internet: je nach Vertrag/ Nutzung/ Verbrauch
Energiekennzahl: OFFEN
Virtueller 3D-Rundgang auf unserer Website www.riareal.at bzw. unter dem nachfolgenden Link:
Vermittlungsprovision & weitere Nebenkosten - ÖVI Form Nr. 13K-05-2024 - siehe Button auf unserer Website
Unser Unternehmen ist als Doppelmakler tätig und stets bestrebt, die Interessen beider Parteien fair zu vertreten und einen reibungslosen Ablauf sicherzustellen.
Lage
Die Wohnung befindet sich in zentraler Lage von Saalfelden am Steinernen Meer. Die Umgebung bietet eine hervorragende Infrastruktur sowie Anbindung an den öffentlichen Verkehr. Freizeitmöglichkeiten wie Wandern, Skifahren und Radfahren liegen in unmittelbarer Nähe. Die ruhige Wohngegend überzeugt durch ihre hohe Lebensqualität. Trotz der Nähe zum Zentrum genießt man hier eine angenehme Wohnatmosphäre. Die Alpenkulisse rund um Saalfelden sorgt zudem für ein eindrucksvolles Panorama und Erholung direkt vor der Haustür.
Plan
Die gepflegte Wohnung befindet sich in einer kleinen Wohnanlage mit nur 6 Einheiten und bietet Raum für individuelle Gestaltung. Dank der durchdachten Raumaufteilung und der angenehmen Lichtverhältnisse entsteht ein besonders wohnliches und einladendes Ambiente. Die hellen Wohnräume in guter Bauausführung sprechen für sich – Holzfenster, Holztüren/ -zargen, Parkett-/ Fliesen-/ Vinyl & Laminatböden. Die Wohnung wird mittels Elektroheizung beheizt. Ein kleiner Wintergarten und ein großzügiger Allgemeingarten laden zur Entspannung und Geselligkeit im Freien ein.
INVESTMENTCHANCE MIT HOHER VERMIETBARKEIT
INVESTMENTCHANCE MIT HOHER VERMIETBARKEIT
Objekt ID: 26/0015
Jetzt Durchblick verschaffen
Fragen zur Immobilie?
Gerne sind wir für Sie da!








